projet  Insertion du projet depuis le parc Arthur Clark
Insertion du projet depuis le parc Arthur Clark
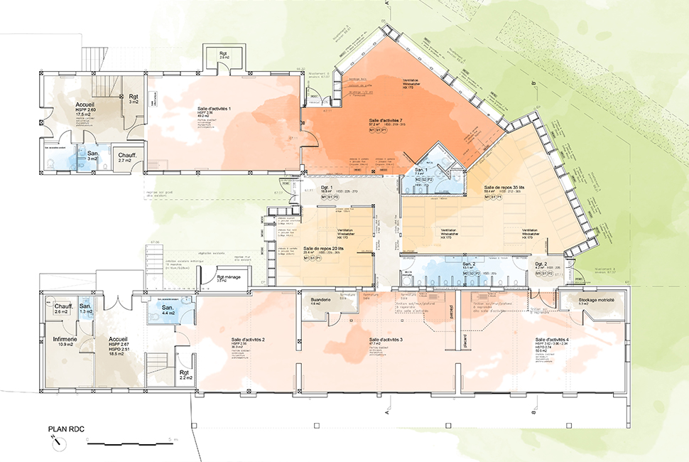
projet  Plan du rez-de-chaussée
Plan du rez-de-chaussée
projet  Schéma de stratégie bioclimatique
Schéma de stratégie bioclimatique

Extension bois-paille du centre de loisirs de Wissous (91)

Ce projet d'extension du centre de loisirs (Accueil Collectif de Mineurs : ACM) nous donne l’occasion de réfléchir à des solutions pour demain, d’inventer de nouvelles façons de construire : en prenant soin des ressources, soin de l’environnement Wissoussien et soin des générations nouvelles. L'extension est posée sur des fondations légères et réversibles. Elle est construite en structure bois, isolée en paille et ventilée naturellement.

La ville de Wissous dispose de deux centres de loisir dont l’Espace Enfance Arthur Clark situé en bordure du parc Arthur Clark et à proximité du groupe scolaire La Fontaine. Un de ses accès s’ouvre sur le parc, à l’Est du site, planté d’érables sycomore et de tilleuls en alignement. Ce domaine est une des plus anciennes propriétés de la ville, elle apparaît pour la première fois en 1657 dans les registres de la commune. Elle y est décrite comme une « grande maison et lieux consistant en plusieurs espèces de bâtiments, grange, écurie, étable, pavillon et chapelle, […] grand jardin […] dans lequel découle une fontaine d’eaux vives ».

Le centre accueille environ 120 enfants, mais ses surfaces d’activités et de dortoirs sont contraintes. De plus, il est divisé en deux bâtiments. Quelques enfants scolarisés à l’école La Fontaine ne peuvent bénéficier de cet accueil en raison du manque d’espace. L’objectif d’augmenter la surface de ces espaces se conjugue au souhait de réunir les deux bâtiments en un seul espace clos.

Le projet prévoit la création d'un extension intégrant deux dortoirs pouvant accueillir 55 enfants, des sanitaires et une salle d’activité supplémentaire de 60 m2 tout en permettant une liaison des deux bâtiments existants. Ses fondations seront réalisées en pieux vissés afin de réduire son impact sur le site. L’extension reprend la pente de toit de l’extension préexistante du bâtiment B afin de conserver la cohérence architecturale des volumes. Elle est réalisée en charpente et ossature bois avec remplissage des murs avec des caissons isolés en paille. La finition extérieure est un bardage de châtaignier à recouvrement en pose verticale. Sa toiture est recouverte de zinc prépatiné posé sur tasseau.

Pour assurer un confort d’été passif, la stratégie de rafraîchissement passif de l’extension a recours aux dispositifs suivants : -mise en œuvre de parois lourdes dans tous les espaces à occupation prolongée. - La mise en place de protections solaires pour éviter la pénétration des calories dans le bâtiment en été -rafraichissement du bâtiment par une surventilation naturelle La ventilation naturelle double-flux sera mise en place pour le confort d’été mais aussi pour assurer le renouvellement de l’air des locaux. Cette ventilation influe sur l’architecture du bâtiment notamment avec la mise en place de systèmes de ventilation naturelle WindCatcher en toiture.

Fiche synthétique

Maître d'ouvrage

Ville de Wissous

Lieu

rue du général de Gressot
Wissous (91)

Dates

Études : 2025
Chantier : 2026

Programme

Extension bois-paille d'un accueil collectif de mineurs, 1 salle d'activité, 2 salles de repos et sanitaires

Environnement

Matériaux biosourcés, structure bois-paille, pieux vissés, ventilation naturelle double-flux

Mission

Complète + OPC

Équipe et Maîtrise d'oeuvre

Architecte mandataire : fair
BET thermique, environnement : P-tréma

Surface de plancher

200 m²

Montant des travaux hors taxes

900 k€